这世界上有很多富豪,虽然他们身处不同的国家,
但有着沾亲带故的关系!
都说“名利场上无兄弟”,最近两个亿万富豪表兄弟,都在新加坡竞拍土地,竞争激烈~


新加坡丰隆集团创始人郭芳枫的长子,郭令明现任丰隆集团主席,旗下公司城市发展执行主席。

郭氏兄弟分家后,由郭令灿主管其父郭芳来所获得丰隆集团在马来西亚的业务,并加入马来西亚国籍,后郭令灿控股国浩集团。

如果政府接受其最高报价,该公司计划在这块拥有99年租赁权的土地上建造四座楼房,每座楼房最多21层,共640个住宅单元。

▼




-
这里位于新加坡核心中央区域,毗邻乌节路顶尖购物商圈,其中包括:Orchard ION,Great World City世界城,Somerset 313购物中心, Takashimaya高岛屋以及Ngee Ann City义安城。

-
著名的克拉码头娱乐中心,新加坡河畔娱乐中心也位于此地;聚集了数百间闻名遐迩的流行酒吧、特色餐厅、咖啡馆,罗波申码头、克拉码头是有生活品味的人喜欢去的地点。

不管时光如何匆匆变换第9邮区总是站在聚光灯下。因为这里,既是新加坡核心地带,也是城市的发源地,是母亲河流淌过的地方……

▲1860年代的新加坡河,每条河流都拥有属于它独特的故事
河流在每一个繁华城市的历史发展,过程中都扮演举足轻重的角色。新加坡有新加坡河、上海有黄浦江、纽约有哈德逊河、伦敦有泰晤士河等等。




有新加坡当地著名的私立幼儿园,PATS School和伊顿幼儿园Eton House等等


这两个地铁站预计2022年开通,将来可以搭乘地铁直达樟宜机场(汤申-东海岸线),等地铁线开通后,将会大大提高该地区的房产价值。



















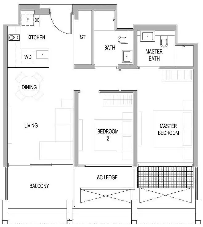
1卧室,52平方米,高效利用面积,宽敞格局,客厅和房间新加坡河景朝向,最便宜单位价格$174.4万起,促销价$161.5万新币起 (高楼)

2卧室,76平方米,高效利用面积,宽敞格局,客厅和两个房间都朝向新加坡河,还有其他款式2卧室户型,最便宜单位价格$241.5万起,促销价$223.7万新币起

3卧室优质型,109平方米,带封闭式厨房,连普通房都约10平方米,轻松放双人床和床头柜,符合高端项目定位,U型厨房,面积高效利用,新加坡河景和滨海湾景观,最便宜单位原价$307.3万起,促销价$283.1万新币起
3卧室+书房优质型,116平方米,带封闭式厨房,每个房间面积大,轻松放双人床和床头柜,符合高端项目定位,面积高效利用,价格329.6万起,最便宜单位价格$333.6万起,促销价$323.5万新币起

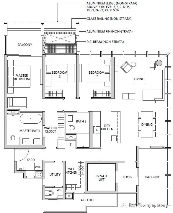
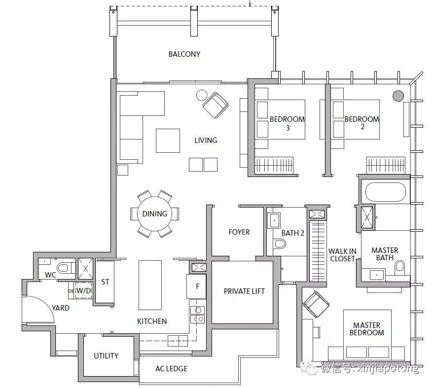
3卧室豪华型,159平方米,厨房分干湿两区,每个房间面积大,轻松放双人床和床头柜,主卧卫生间带浴缸,符合高端项目定位,私人电梯直接入户,最便宜单位价格$493.2万起,促销价$454.4万新币起

3卧室豪华型,140平方米,带私人电梯直接入户,大平层设计,主卧带浴缸,大客厅可以看270度美景,享受漂亮新加坡河景和乌节路景观,最便宜单位价格$439万起,促销价$425.8万新币起

3卧室豪华型,170平方米,带私人电梯直接入户,厨房分干湿两区,大平层设计,主卧带浴缸,大客厅可以看270度美景,享受漂亮新加坡河景和乌节路景观

4卧室豪华型,186平方米,样板房户型,带私人电梯直接入户,厨房分干湿两区,大平层设计,大客厅可以看270度美景,享受漂亮新加坡河景和滨海湾景观,最便宜单位价格$566.6万起,促销价$533.1万新币起(4楼单位)

作者个人简历
吴彪:2002年拿新加坡政府奖学金来新加坡深造,已经定居新加坡18年,熟悉中国和新加坡的国情,现任职于新加坡股票交易所SGX上市企业,新加坡最大的地产公司之一PropNex地产公司担任高级营销总监,从事房屋经纪行业10年多,已经完成数百宗房地产交易,成交的房屋价值高达新币上亿元,服务过数百位中高档客户,广受客户们好评。包括企业家、企业高管、中小型公司老板、房地产发展商、新移民、教授、医生等等。
熟悉私人公寓,商业地产,组屋的交易流程,全面了解房屋贷款,协助顾客办理好贷款,律师办理房产相关手续等,提供新加坡任何公寓楼盘和商业地产买卖投资服务,买私宅无任何经纪费用。
买卖房产是专业的事情,专业的事情找专业的经纪做。
真诚待人,熟悉房地产市场,通晓中英文双语,善于沟通。
ERAPlush会员(经过公司严格挑选,服务高净值客户)

感谢各位客户朋友的支持,本人在公司多次获得顶级销售奖,提供诚意十足,细心周到的为客户服务,所以收到客户们的广泛好评,服务好任何客户是我的最重要原则,欢迎买家或卖家联系我。

微信号:Jackwuhome 电话:65-91525858
公众号:新加坡通(新加坡房产资讯、政策解读等等)
网站: www.Jackwuhome.com















