2天前
210
0


这其中又有多少中国人呢?



























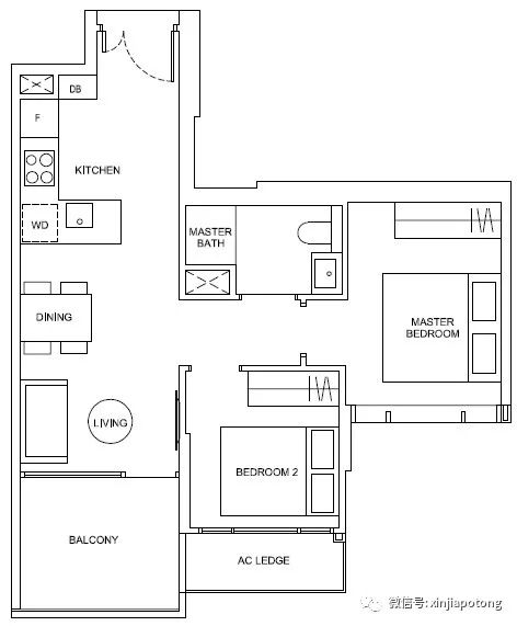
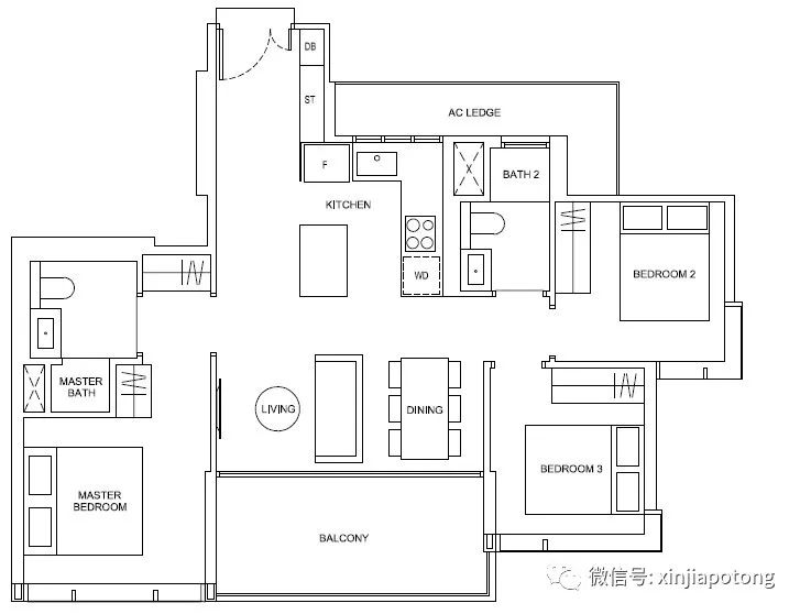
基本资料
|
所处区域 |
第10邮区,乌节路 |
|
地契 |
永久地契 |
|
公寓设施: |
标准公寓设施 |
|
户型 |
1卧室-4卧室 |
|
楼层 |
12楼 |
|
交房时间: |
已交房(买好即可拎包入住) |
|
发展商 |
Aurum Land有限公司 (新加坡最大建筑商旗下公司) |
|
总共单位 |
117个 |
|
占地面积 |
66951平方英尺 |
实地拍摄视频

























作者个人简历
吴彪:2002年拿新加坡政府奖学金来新加坡深造,已经定居新加坡18年,熟悉中国和新加坡的国情,现任职于新加坡股票交易所SGX上市企业,新加坡最大的地产公司之一PropNex地产公司担任高级营销总监,从事房屋经纪行业10年多,已经完成数百宗房地产交易,成交的房屋价值高达新币上亿元,服务过数百位中高档客户,广受客户们好评。包括企业家、企业高管、中小型公司老板、房地产发展商、新移民、教授、医生等等。
熟悉私人公寓,商业地产,组屋的交易流程,全面了解房屋贷款,协助顾客办理好贷款,律师办理房产相关手续等,提供新加坡任何公寓楼盘和商业地产买卖投资服务,买私宅无任何经纪费用。
买卖房产是专业的事情,专业的事情找专业的经纪做。
真诚待人,熟悉房地产市场,通晓中英文双语,善于沟通。
ERAPlush会员(经过公司严格挑选,服务高净值客户)
感谢各位客户朋友的支持,本人在公司多次获得顶级销售奖,提供诚意十足,细心周到的为客户服务,所以收到客户们的广泛好评,服务好任何客户是我的最重要原则,欢迎买家或卖家联系我。
微信号:Jackwuhome 电话:65-91525858
公众号:新加坡通(新加坡房产资讯、政策解读等等)
网站: www.Jackwuhome.com